 |
|
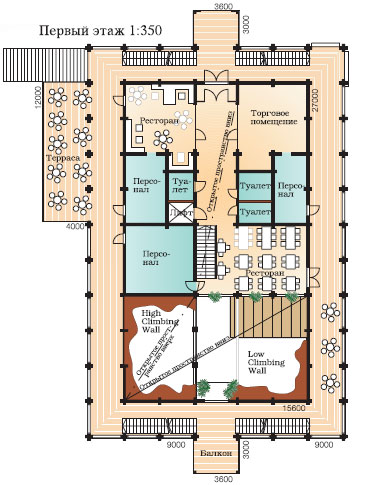
Kontio Arctium
|
|
|
|
|
 |
| Предлагаем
Вам проекты деревянных домов от ведущего производителя - финской
компании "Контио". На этой странице Вы можете посмотреть
подробные проекты деревянных домов. Проектировщики "Контио"
умело и взвешенно сочетают, например, элементы скандинавского стиля
и русского зодчества. В проекте деревянного дома по Вашему желанию
мы учтем высокие потолки, толстые стены и более разнообразный интерьер,
чтобы дом и снаружи, и внутри выглядел существенно богаче. |
|
|
|
|
|
| |
|
Спецификации
и характеристики
|
|
| |
|
|
|
|
|
 |