НОУ-ХАУС строительство , строительные материалы
Национальная
информационная
система
по строительству
Подпишитесь на нашу рассылку Subscribe.ru
KNOW-HOUSE.RU строительные материалы и технологии
Строительство:  Экспорт новостей
Информация по строительству



Проекты домов заводской комплектации


Kontio Quercus

    ПРОЕКТ
 
    Kontio Quercus  
ПРОЕКТ Kontio Quercus
Предлагаем Вам проекты деревянных домов от ведущего производителя - финской компании "Контио". На этой странице Вы можете посмотреть подробные проекты деревянных домов. Проектировщики "Контио" умело и взвешенно сочетают, например, элементы скандинавского стиля и русского зодчества. В проекте деревянного дома по Вашему желанию мы учтем высокие потолки, толстые стены и более разнообразный интерьер, чтобы дом и снаружи, и внутри выглядел существенно богаче.
 
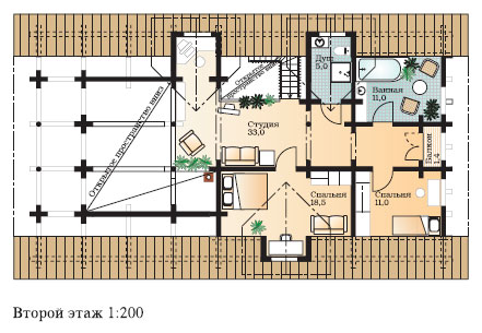
  Чертежи и схемы
   
 Рис. 1        Рис. 2        Рис. 3     Рис. 4
 
  Спецификации и характеристики
   
 
У вас возникли вопросы по данному коттеджу, вы хотите построить подобный загородный дом ? - обращайтесь в компанию
 





Форум по строительству | Биржа труда | Типовые технические задания на проектирование | Cайты по строительству | СРО в строительстве | Словарь (анг.-рус.) строительный | Конференции по строительству | Ссылки
| конструктивные системы | фундаменты | стены и фасады | перекрытия | крыши | окна | двери и ворота | лестницы | балконы и лоджии | мансарды | полы | потолки | перегородки | зимние сады | гидро- и пароизоляционные материалы | теплоизоляционные материалы | звукоизоляционные материалы | подготовка к отделке | отделочные материалы | Искусственный камень | керамическая плитка и натуральный камень | краски | стекло | огнезащитные материалы | бетоны | отопление зданий | электрическое оборудование | вентиляция и кондиционирование | канализация | лифты и эскалаторы | Маркет строительных товаров | техническая инфотека | конференции по строительству | ГОСТы и СНиПы | строительные выставки | каталог товаров и фирм | программы для проектировщиков | архитектурные конкурсы | центры повышения квалификации | книги по строительству | проекты коттеджей | предыдущая версия сайта | новости от НOУ-ХАУС.ру | Строительные калькуляторы | Проекты домов заводской готовности
© 2014 "НОУ-ХАУС.РУ"
© ЗАО "НОВОЕ"
ИНФОРМАЦИОННАЯ СИСТЕМА ПО СТРОИТЕЛЬСТВУ "НОУ-ХАУС.ру"
Рейтинг@Mail.ru
Использование любых материалов ИС "НОУ-ХАУС" допускается только с письменного разрешения редакции.
Свидетельство о регистрации
ЭЛ N 77-28-78 от 14.06.2000