НОУ-ХАУС строительство , строительные материалы
Национальная
информационная
система
по строительству
Подпишитесь на нашу рассылку Subscribe.ru
KNOW-HOUSE.RU строительные материалы и технологии
Строительство:  Экспорт новостей
Информация по строительству



Проекты домов заводской комплектации

Проекты коттеджей Модерни-Тало МОДЕРНИ-ТАЛО Рус JUKKA

МОДЕРНИ-ТАЛО Рус JUKKA

    ПРОЕКТ
 
           МОДЕРНИ-ТАЛО Рус  JUKKA
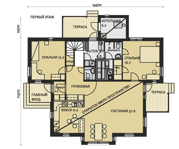
Жилая площадь 164.0 м2
Общая площадь 2050 м2
Площадь балкона и террас 2д.о м2

Одна из версий типового проекта финского завода Jukka-talo, пользующаяся большой
популярностью. Дом JUKKA выполнен в духе современной архитектуры и впишется как в городскую среду, так и за городом. Этот коттедж подходит и для большой семьи:
в нём 4 спальни, з туалета, 2 ванные комнаты, большая кухня-гостиная с высоким потолком и верхним светом. Сауна, гардеробные, котельная и прачечная создают дополнительные удобства. На большой террасе за столом может собираться вся семья.

Этот дом впишется на любой участок - в нём три входа, любой из которых может быть главным.

 
  Чертежи и схемы
   
Чертежи и схемы
 Рис. 1   Рис. 2
 
  Спецификации и характеристики
   
 
 
У вас возникли вопросы по данному коттеджу,
вы хотите построить подобный загородный дом ?
- обращайтесь в компанию
 





Форум по строительству | Биржа труда | Типовые технические задания на проектирование | Cайты по строительству | СРО в строительстве | Словарь (анг.-рус.) строительный | Конференции по строительству | Ссылки
| конструктивные системы | фундаменты | стены и фасады | перекрытия | крыши | окна | двери и ворота | лестницы | балконы и лоджии | мансарды | полы | потолки | перегородки | зимние сады | гидро- и пароизоляционные материалы | теплоизоляционные материалы | звукоизоляционные материалы | подготовка к отделке | отделочные материалы | Искусственный камень | керамическая плитка и натуральный камень | краски | стекло | огнезащитные материалы | бетоны | отопление зданий | электрическое оборудование | вентиляция и кондиционирование | канализация | лифты и эскалаторы | Маркет строительных товаров | техническая инфотека | конференции по строительству | ГОСТы и СНиПы | строительные выставки | каталог товаров и фирм | программы для проектировщиков | архитектурные конкурсы | центры повышения квалификации | книги по строительству | проекты коттеджей | предыдущая версия сайта | новости от НOУ-ХАУС.ру | Строительные калькуляторы | Проекты домов заводской готовности
© 2014 "НОУ-ХАУС.РУ"
© ЗАО "НОВОЕ"
ИНФОРМАЦИОННАЯ СИСТЕМА ПО СТРОИТЕЛЬСТВУ "НОУ-ХАУС.ру"
Рейтинг@Mail.ru
Использование любых материалов ИС "НОУ-ХАУС" допускается только с письменного разрешения редакции.
Свидетельство о регистрации
ЭЛ N 77-28-78 от 14.06.2000