НОУ-ХАУС строительство , строительные материалы
Национальная
информационная
система
по строительству
Подпишитесь на нашу рассылку Subscribe.ru
KNOW-HOUSE.RU строительные материалы и технологии
Строительство:  Экспорт новостей
Информация по строительству



Проекты домов заводской комплектации

Проекты коттеджей Модерни-Тало МОДЕРНИ-ТАЛО Рус JYRI

МОДЕРНИ-ТАЛО Рус JYRI

    ПРОЕКТ
 
           МОДЕРНИ-ТАЛО Рус  JYRI
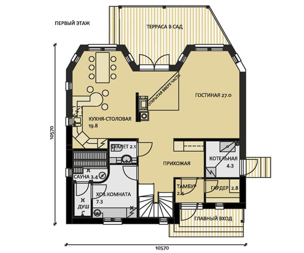
Жилая площадь 149,0 м2
Общая площадь 173,0 м2
Площадь балкона и террас 30,0 м2

Прекрасный дом для современной семьи: кухня-студия, гостиная, домашний кинотеатр, з спальни, 2 туалета, просторная моечная и хозяйская комната, большая сауна. Особое архитектурное решение позволяет выгодно разместить этот коттедж на участке. За счёт компактности достигается небывалая экономия тепла, что ставит этот дом на первые места по энергосбережению среди жилых зданий. Волнообразная стена и двухэтажный витраж создают эффектный фасад, а также обеспечивают естественный свет внутри дома в течение всего дня.

 
  Чертежи и схемы
   
Чертежи и схемы
 Рис. 1   Рис. 2
 
  Спецификации и характеристики
   
 
 
У вас возникли вопросы по данному коттеджу,
вы хотите построить подобный загородный дом ?
- обращайтесь в компанию
 





Форум по строительству | Биржа труда | Типовые технические задания на проектирование | Cайты по строительству | СРО в строительстве | Словарь (анг.-рус.) строительный | Конференции по строительству | Ссылки
| конструктивные системы | фундаменты | стены и фасады | перекрытия | крыши | окна | двери и ворота | лестницы | балконы и лоджии | мансарды | полы | потолки | перегородки | зимние сады | гидро- и пароизоляционные материалы | теплоизоляционные материалы | звукоизоляционные материалы | подготовка к отделке | отделочные материалы | Искусственный камень | керамическая плитка и натуральный камень | краски | стекло | огнезащитные материалы | бетоны | отопление зданий | электрическое оборудование | вентиляция и кондиционирование | канализация | лифты и эскалаторы | Маркет строительных товаров | техническая инфотека | конференции по строительству | ГОСТы и СНиПы | строительные выставки | каталог товаров и фирм | программы для проектировщиков | архитектурные конкурсы | центры повышения квалификации | книги по строительству | проекты коттеджей | предыдущая версия сайта | новости от НOУ-ХАУС.ру | Строительные калькуляторы | Проекты домов заводской готовности
© 2014 "НОУ-ХАУС.РУ"
© ЗАО "НОВОЕ"
ИНФОРМАЦИОННАЯ СИСТЕМА ПО СТРОИТЕЛЬСТВУ "НОУ-ХАУС.ру"
Рейтинг@Mail.ru
Использование любых материалов ИС "НОУ-ХАУС" допускается только с письменного разрешения редакции.
Свидетельство о регистрации
ЭЛ N 77-28-78 от 14.06.2000