НОУ-ХАУС строительство , строительные материалы
Национальная
информационная
система
по строительству
Подпишитесь на нашу рассылку Subscribe.ru
KNOW-HOUSE.RU строительные материалы и технологии
Строительство:  Экспорт новостей
Информация по строительству



Проекты домов заводской комплектации

Проекты коттеджей Модерни-Тало МОДЕРНИ-ТАЛО Рус VIKTORI

МОДЕРНИ-ТАЛО Рус VIKTORI

    ПРОЕКТ
 
           МОДЕРНИ-ТАЛО Рус  VIKTORI
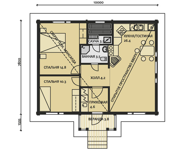
Жилая площадь 75,0 м
Общая площадь 99,5 м

VIKTORI - это дом для маленькой семьи или гостевой дом при усадьбе. При своей небольшой площади, он предоставляет удобства класса люкс. В доме есть всё и на все случаи. Дровяная печь в сауне и камин могут, при необходимости, отапливать весь дом. Толстый массив клееного бруса эффектно смотрится в двусветной кухне-гостиной, а прихожая и высокая мансарда прекрасно вмещают техническое оснащение "умного" дома. Меньшая спальня может использоваться как гостевая комната или кабинет. Этот коттедж можно разместить даже на самом сложном участке - одна наружная брандмауэрная стена позволит поставить его и в тесной и дорогой городской застройке, либо у въезда на участок. Для дома могут быть поставлены раздвижные деревянные наружные жалюзи - вас не потревожат соседи или хулиганы.

 
  Чертежи и схемы
   
Чертежи и схемы
 Рис. 1   Рис. 2
 
  Спецификации и характеристики
   
 
 
У вас возникли вопросы по данному коттеджу,
вы хотите построить подобный загородный дом ?
- обращайтесь в компанию
 





Форум по строительству | Биржа труда | Типовые технические задания на проектирование | Cайты по строительству | СРО в строительстве | Словарь (анг.-рус.) строительный | Конференции по строительству | Ссылки
| конструктивные системы | фундаменты | стены и фасады | перекрытия | крыши | окна | двери и ворота | лестницы | балконы и лоджии | мансарды | полы | потолки | перегородки | зимние сады | гидро- и пароизоляционные материалы | теплоизоляционные материалы | звукоизоляционные материалы | подготовка к отделке | отделочные материалы | Искусственный камень | керамическая плитка и натуральный камень | краски | стекло | огнезащитные материалы | бетоны | отопление зданий | электрическое оборудование | вентиляция и кондиционирование | канализация | лифты и эскалаторы | Маркет строительных товаров | техническая инфотека | конференции по строительству | ГОСТы и СНиПы | строительные выставки | каталог товаров и фирм | программы для проектировщиков | архитектурные конкурсы | центры повышения квалификации | книги по строительству | проекты коттеджей | предыдущая версия сайта | новости от НOУ-ХАУС.ру | Строительные калькуляторы | Проекты домов заводской готовности
© 2014 "НОУ-ХАУС.РУ"
© ЗАО "НОВОЕ"
ИНФОРМАЦИОННАЯ СИСТЕМА ПО СТРОИТЕЛЬСТВУ "НОУ-ХАУС.ру"
Рейтинг@Mail.ru
Использование любых материалов ИС "НОУ-ХАУС" допускается только с письменного разрешения редакции.
Свидетельство о регистрации
ЭЛ N 77-28-78 от 14.06.2000