НОУ-ХАУС строительство , строительные материалы
Национальная
информационная
система
по строительству
Подпишитесь на нашу рассылку Subscribe.ru
KNOW-HOUSE.RU строительные материалы и технологии
Строительство:  Экспорт новостей
Информация по строительству



Проекты домов заводской комплектации

Проекты коттеджей Модерни-Тало МОДЕРНИ-ТАЛО Рус VLADIMIR

МОДЕРНИ-ТАЛО Рус VLADIMIR

    ПРОЕКТ
 
           МОДЕРНИ-ТАЛО Рус  VLADIMIR
Жилая площадь 263,0 м2
Общая площадь 331,0 м2

Значительный по размерам и представительный дом VLADIMIR
выполнен из больших панелей и кирпича.

Дом для семьи с широкими интересами прекрасно вписывается в городской и
сельский ландшафт. Строгое зонирование создаёт комфорт для всех: спальная зона и зона для активного времяпровождения разделены поэтажно. Так, разные члены семьи смогут принимать гостей, проводить время в бильярдной, читать в библиотеке, заниматься цветами в
зимнем саду, работать в кабинете либо по хозяйству одновременно друг с другом.

 
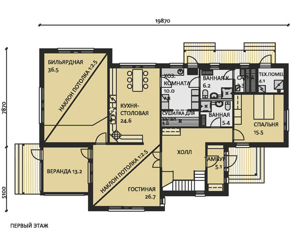
  Чертежи и схемы
   
Чертежи и схемы
 Рис. 1   Рис. 2
 
  Спецификации и характеристики
   
 
 
У вас возникли вопросы по данному коттеджу,
вы хотите построить подобный загородный дом ?
- обращайтесь в компанию
 





Форум по строительству | Биржа труда | Типовые технические задания на проектирование | Cайты по строительству | СРО в строительстве | Словарь (анг.-рус.) строительный | Конференции по строительству | Ссылки
| конструктивные системы | фундаменты | стены и фасады | перекрытия | крыши | окна | двери и ворота | лестницы | балконы и лоджии | мансарды | полы | потолки | перегородки | зимние сады | гидро- и пароизоляционные материалы | теплоизоляционные материалы | звукоизоляционные материалы | подготовка к отделке | отделочные материалы | Искусственный камень | керамическая плитка и натуральный камень | краски | стекло | огнезащитные материалы | бетоны | отопление зданий | электрическое оборудование | вентиляция и кондиционирование | канализация | лифты и эскалаторы | Маркет строительных товаров | техническая инфотека | конференции по строительству | ГОСТы и СНиПы | строительные выставки | каталог товаров и фирм | программы для проектировщиков | архитектурные конкурсы | центры повышения квалификации | книги по строительству | проекты коттеджей | предыдущая версия сайта | новости от НOУ-ХАУС.ру | Строительные калькуляторы | Проекты домов заводской готовности
© 2014 "НОУ-ХАУС.РУ"
ИНФОРМАЦИОННАЯ СИСТЕМА ПО СТРОИТЕЛЬСТВУ "НОУ-ХАУС.ру"
Рейтинг@Mail.ru