НОУ-ХАУС строительство , строительные материалы
Национальная
информационная
система
по строительству
Подпишитесь на нашу рассылку Subscribe.ru
KNOW-HOUSE.RU строительные материалы и технологии
Строительство:  Экспорт новостей
Информация по строительству



Проекты домов заводской комплектации


FreeDom Works q-base

    ПРОЕКТ
 
           FreeDom Works q-base
Проект дома из клееного бруса (профилированного) сечением 200х180 мм.
Общая площадь – 242 кв.м
1 этаж – высота 3 м
2 этаж (мансардный) – высота в районе примыкания кровли к стенам 2,0 м, в коньке кровли 3,56 м.
Несущие конструкции из клееного бруса.

Фундамент. Мелкозаглубленный монолитный железобетонный ростверк на свайном основании. На ростверке выполняется кирпичная кладка высотой 350мм (5 рядов) из полнотелого кирпича
Кровля – мягкая черепица.
Межкомнатные перегородки – деревянные каркасные стены с шумоизолирующим заполнением, обшитые гипсокартоном.
Пристроенный гараж (вариант: зал с панорамным остеклением) – деревянный каркас с обшивкой блокхаузом (имитация бруса) с наружной стороны и ГВЛ изнутри.

По функции дом разделен на две части:

  • «Гостевая» часть на первом этаже включает в себя гостиную, кухню, столовую, гостевой санузел, спальню для гостей.
  • «Семейная» часть на втором этаже состоит из двух спален, кабинета, гардеробной и раздельного санузла.
  • Пристрой спроектирован в двух вариантах: а) гараж на два автомобиля; б) зал с панорамным остеклением (различные варианты использования)
  • Кроме этого, на первом этаже находится техническая комната и кладовая.
FreeDom Works
 
  Чертежи и схемы
   
Фасад и интерьеры
 Рис. 1   Рис. 2
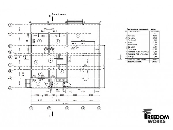
Чертежи
 Рис. 3  Рис. 4  Рис. 5  Рис. 6
 Рис. 7    
 
  Комплектация
   
 
 
У вас возникли вопросы по данному коттеджу,
вы хотите построить подобный загородный дом ?
- обращайтесь в компанию
 





Форум по строительству | Биржа труда | Типовые технические задания на проектирование | Cайты по строительству | СРО в строительстве | Словарь (анг.-рус.) строительный | Конференции по строительству | Ссылки
| конструктивные системы | фундаменты | стены и фасады | перекрытия | крыши | окна | двери и ворота | лестницы | балконы и лоджии | мансарды | полы | потолки | перегородки | зимние сады | гидро- и пароизоляционные материалы | теплоизоляционные материалы | звукоизоляционные материалы | подготовка к отделке | отделочные материалы | Искусственный камень | керамическая плитка и натуральный камень | краски | стекло | огнезащитные материалы | бетоны | отопление зданий | электрическое оборудование | вентиляция и кондиционирование | канализация | лифты и эскалаторы | Маркет строительных товаров | техническая инфотека | конференции по строительству | ГОСТы и СНиПы | строительные выставки | каталог товаров и фирм | программы для проектировщиков | архитектурные конкурсы | центры повышения квалификации | книги по строительству | проекты коттеджей | предыдущая версия сайта | новости от НOУ-ХАУС.ру | Строительные калькуляторы | Проекты домов заводской готовности
© 2014 "НОУ-ХАУС.РУ"
© ЗАО "НОВОЕ"
ИНФОРМАЦИОННАЯ СИСТЕМА ПО СТРОИТЕЛЬСТВУ "НОУ-ХАУС.ру"
Рейтинг@Mail.ru
Использование любых материалов ИС "НОУ-ХАУС" допускается только с письменного разрешения редакции.
Свидетельство о регистрации
ЭЛ N 77-28-78 от 14.06.2000