НОУ-ХАУС строительство , строительные материалы
Национальная
информационная
система
по строительству
Подпишитесь на нашу рассылку Subscribe.ru
KNOW-HOUSE.RU строительные материалы и технологии
Строительство:  Экспорт новостей
Информация по строительству



Проекты домов заводской комплектации

Проекты коттеджей FreeDom Works FreeDom Works FDW - 100 kv m

FreeDom Works FDW - 100 кв м

    ПРОЕКТ
 
           FreeDom Works FDW - 100 кв.м
Общая площадь дома 100 кв.м

Отличное предложение для тех, кто ценит новые технологии деревянного домостроения и при этом хочет сэкономить.
Дом из клееного бруса за 1 500 000 рублей!
Вы думаете, это невозможно? Мы готовы построить его для Вас!
Специальный проект от компании FreeDom Works

  • компактный дом, который можно разместить даже на скромном дачном участке
  • дом пригоден для полноценного проживания семьи из 4 человек
  • дом снабжен всеми удобствами для круглогодичного проживания
  • предусмотрен навес для автомобиля или крытая терраса, по желанию заказчика
  • несущие стены выполнены из бруса высотой 180 мм
  • гарантия 5 лет на все деревянные элементы!
ПРОЕКТ Good Wood Д-001-235
 
  Чертежи и схемы
   
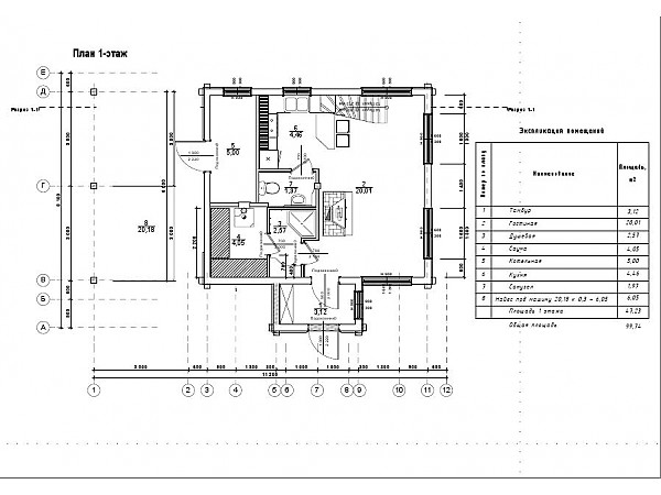
План первого этажа:
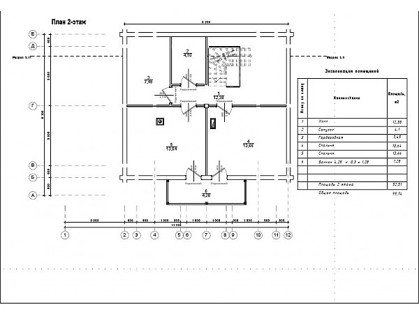
План второго этажа:
Фасад
 Рис. 1  План первого этажа  Рис. 2  План второго этажа  Рис. 3  Фасад
 
  Комплектация
   
 

1. ФУНДАМЕНТ
Мелкозаглубленный монолитный железобетонный ростверк на свайном основании.
Размер ростверка: 350х400 (h) мм

2. ПЕРЕКРЫТИЯ НА 1 ЭТАЖЕ И МЕЖДУ ЭТАЖАМИ
Несущие балки перекрытий: клееный профилированный брус 180х180 мм.
Деревянные балки перекрытий 50х200мм.

3. СТЕНЫ
Несущие стены изготавливаются из клееного профилированного бруса. Порода древесины: ель/сосна. Толщина стены: 160мм. Высота венца (ряда) в собранной стене: 140мм. В комплектацию входят колонны и столбы, выполняющие функцию опор, выполняются из клееного гладкостроганного бруса, 180х180мм. Детали несущих стен и колонны обрабатываются в заводских условиях антисептиком.

4. ОКНА
Оконные блоки и блоки балконных дверей: ПВХ
Профиль оконного блока: 58мм, трехкамерный

5. ДВЕРИ
Предусмотрен монтаж основной входной двери и двери в котельную.

6. СТРОПИЛЬНАЯ СИСТЕМА
Коньковые балки, подстропильные балки и выпуски под кровлю выполняются из клееного профилированного бруса 140х160мм.
Стропильная система выполняется из доски 50х200мм. Стропильная система обрабатывается спец. составом.

7. КРОВЛЯ
Кровельное покрытие:
На стропильную систему укладывается полный пирог кровли, включающий: утеплитель (200мм, полная изоляция стропил), диффузионную мембрану, пароизоляцию, ОСБ, всю необходимую обрешетку.
Тип кровельного покрытия: гибкая черепица (возможна замена кровельного покрытия на другой тип).

8. Водосточная система: пластиковая, круглого сечения.
Цвет: белый.

9. Снегодержатели

 
 
У вас возникли вопросы по данному коттеджу,
вы хотите построить подобный загородный дом ?
- обращайтесь в компанию
 





Форум по строительству | Биржа труда | Типовые технические задания на проектирование | Cайты по строительству | СРО в строительстве | Словарь (анг.-рус.) строительный | Конференции по строительству | Ссылки
| конструктивные системы | фундаменты | стены и фасады | перекрытия | крыши | окна | двери и ворота | лестницы | балконы и лоджии | мансарды | полы | потолки | перегородки | зимние сады | гидро- и пароизоляционные материалы | теплоизоляционные материалы | звукоизоляционные материалы | подготовка к отделке | отделочные материалы | Искусственный камень | керамическая плитка и натуральный камень | краски | стекло | огнезащитные материалы | бетоны | отопление зданий | электрическое оборудование | вентиляция и кондиционирование | канализация | лифты и эскалаторы | Маркет строительных товаров | техническая инфотека | конференции по строительству | ГОСТы и СНиПы | строительные выставки | каталог товаров и фирм | программы для проектировщиков | архитектурные конкурсы | центры повышения квалификации | книги по строительству | проекты коттеджей | предыдущая версия сайта | новости от НOУ-ХАУС.ру | Строительные калькуляторы | Проекты домов заводской готовности
© 2014 "НОУ-ХАУС.РУ"
ИНФОРМАЦИОННАЯ СИСТЕМА ПО СТРОИТЕЛЬСТВУ "НОУ-ХАУС.ру"
Рейтинг@Mail.ru